ニチイホーム 栗平
介護付きホーム
- 所在地
- 神奈川県川崎市麻生区栗平1-11-1
- 交通
- 小田急多摩線「栗平」駅南口より徒歩2分(160m)
空室状況
- 個室
- 空きあり
-
※空室状況は、2025年11月19日時点のものです。
料金プラン
標準プラン
- 入居金(非課税)
- 540.0万円
- 月額利用料
- 215,900円/月
月払いプラン
- 月額利用料
- 320,900円/月
お知らせ・お役立ち情報
おすすめポイント
※重要なおしらせ :ニチイホーム栗平は、2026年2月28日をもって閉鎖し 2026年3月1日に ニチイホーム溝の口 として移転オープンさせていただく運びとなりました。 移行期間中もご生活いただくことが可能ですので、詳しくはお問い合わせください。
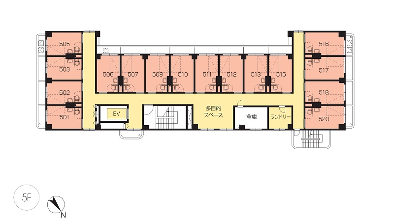
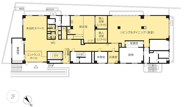
内観写真・フロアマップ
料金表
個室
月払いプラン
- 月額利用料
- 320,900円/月
- 家賃
- 190,000円(非課税)
- 食費
- 75,900円(うち消費税等6,900円)
- 管理費
- 55,000円(非課税)
標準プラン
- 入居金(非課税)
- 540万円
- 月額利用料
- 215,900円/月
- 家賃
- 85,000円(非課税)
- 食費
- 75,900円(うち消費税等6,900円)
- 管理費
- 55,000円(非課税)
料金シミュレーション
ご利用の施設、料金プラン、お客様の要介護度などからおおよその費用が試算できます。
介護保険サービス費(介護費)の自己負担分(1割の場合)
| 要支援1 | 6,760円 |
|---|---|
| 要支援2 | 11,476円 |
| 要介護1 | 20,110円 |
| 要介護2 | 22,540円 |
| 要介護3 | 25,080円 |
| 要介護4 | 27,437円 |
| 要介護5 | 29,940円 |
夜間看護体制加算(要介護1~5)・協力医療機関連携加算・介護職員等処遇改善加算(要支援1~2・要介護1~5)が適用された場合の1割負担額です(30日分)。看取り介護を行った場合、看取り介護加算(要介護1~5)が追加となります。法令で定められた要件を満たした場合は、別途加算が追加となる場合があります。
なお、一定以上の所得がある場合は負担割合が異なります。お客様ご自身の負担割合につきましては、要支援・要介護認定を受けた際に自治体から交付される「介護保険負担割合証」でご確認いただけます。(2024年6月現在)
入居金について
- 基準年齢(75歳以上)の想定居住期間(5年)に基づいた入居金です。
- 入居金は、想定居住期間の前払家賃相当額(入居金の70%)と、想定居住期間を超えて契約が継続する場合に備えてお客様より受領する額(入居金の30%)の合計額で、返還制度があります。但し、このうち入居金の30%の額については、返還の対象とはなりません。入居日の翌日から3ヵ月以内に解約又は契約の終了があった場合は、入居金の全額から居住日数に応じた日割家賃を差し引いた額を返還いたします。尚、ご入居時年齢が75歳未満の方については、入居金と想定居住期間が異なりますので、別途ご提示させていただきます。
- 月払いプランの場合、ご契約時に保証金50万円をお預かりいたしますが、原則契約が終了いたしますと全額返還いたします。支払い債務がある場合は保証金からその対当額を差し引かせていただくことがあります。
月額利用料について
- 家賃は専用居室、共用施設の利用料
- 管理費は施設維持管理費・修繕費、電気・ガス・水道・下水及び環境衛生費など
- 食費は食材費・厨房管理費等
月額利用料以外に別途かかる費用について
- 個人に関わる費用(医療費、日用品費、嗜好品購入費、理美容費、おむつ代等)や、施設におけるレクリエーション費、介護保険給付の規定以上のサービス費用は別途必要となります。
- 月額利用料のほかに要支援・要介護に認定された方は、介護保険サービス費(介護費)の自己負担分を別途ご負担いただきます。また、介護認定未申請・申請中の方、自立の方は生活サポート費88,000円(うち消費税等8,000円)が加算されます。生活サポート費は、介護保険給付対象外の方にご負担いただく介護・生活サービス等の人件費です。
- 適切な介護サービス提供のため、一定の期間を設け、医師の判断、入居者様及び身元引受人の同意のもと、居室を変更していただくことがあります。それに伴い、居室の利用権も移行されます。転室の際に、構造もしくは仕様の変更、1名当たりの居室面積が変わることがありますが、入居金(前払金)及び月額利用料の変更はございません。
- 医療機関への入院による治療が必要となった場合、ご相談の上、ご退去いただくことがございます。
体験入居について
1泊11,000円(うち消費税等1,000円)で最大7泊まで体験入居を承っております。
- 家賃・管理費・食費・介護費が含まれます。
- 介護保険の給付対象外サービスのため全額自己負担によるご利用となります。
- ご利用者個人のおむつ代、医療費、嗜好品購入費などは含まれておりません。
お問い合わせ
直接ご相談、
内覧をしたい方はこちら
電話で今すぐご相談!
0120-555-800午前9時~午後6時
(土日祝も受付 ※年末年始は除く)
実際に施設を見に行く

内覧でスタッフの対応やご入居者様への接し方をチェック!
- 暮らしの雰囲気を感じられる!
- お部屋や設備を直接見て触って生活をイメージできる!








